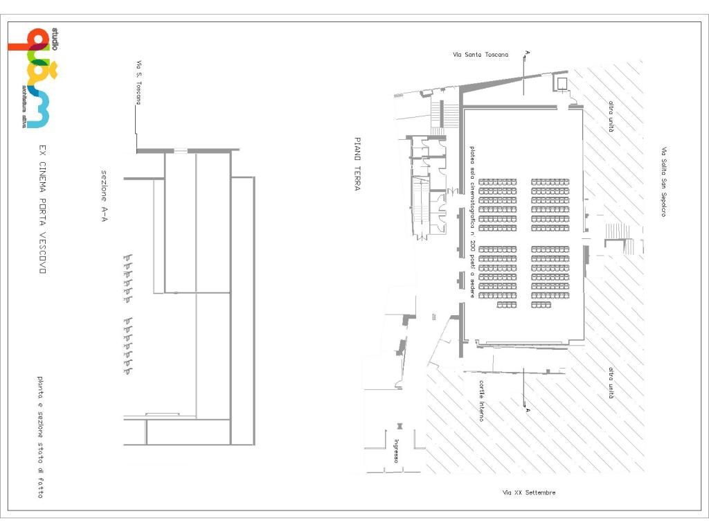
- Metratura: 1500 mq
- Studio di fattibilità e progetto preliminare arch. Guendalina Scilla
Nel 2018 la proprietà incarica lo studio di fattibilità per una riqualificazione dell’immobile ad uso residenziale. Nel 2021 Studioquam presenta la manifestazione di interesse perché il comparto sia inserito nella Variante 29 e il risultato è una scheda norma interessante per la fattibilità dell’intervento sia in termini di procedimenti autorizzativi sia di contenuto di trasformazione
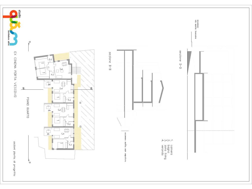
La volontà dello studio è quella di intervenire con una riqualificazione curata culturalmente e pragmaticamente per offrire unità residenziali di alta qualità abitativa e che si connotino come contemporanee e nel contempo connesse con il tessuto storico del quartiere.














