- Anno 2018
- Lonato del Garda, Brescia
- Progetto: arch. Sonia Iorio De Marco
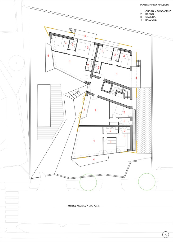
Il progetto consiste in un fabbricato residenziale in sostituzione di uno esistente che risale agli anni ’70 posto sul lungolago di Lonato d/G. L’edificio si sviluppa in tre piani fuori terra, un piano seminterrato destinato a garages, posti auto e vani tecnici ed un tetto piano praticabile; il volume si articola su tutto il lotto evitando, come principio generale, la concentrazione dell’ingombro sul fronte strada via Catullo.
Il progetto presenta i prospetti, orientati verso il lago, caratterizzati da vetrate che hanno lo scopo di catturare frammenti del paesaggio lacustre ma anche la fondamentale funzione di introiettare la luce all’interno delle unità abitative considerando l’orientamento sfavorevole a nord e nord/ovest. I prospetti a sud ed est presentano invece forometrie meno ampie dettate dalle funzioni dei locali prevalentemente di servizio che li si affacciano. Il progetto, per risolvere l’impatto del forte irraggiamento che subiscono i prospetti orientati a sud ricorre all’ausilio di una “seconda pelle”, realizzata con elementi di maglia metallica, che ha la funzione di “frangisole”. Tale elemento di schermatura, che diventa anche “figura architettonica”, è ancorato al prospetto strutturale ma separato di un metro dallo stesso. La seconda pelle ha il vantaggio, data la sua struttura leggera costituita da pannelli a maglia metallica, di lasciarsi facilmente contaminare dalla vegetazione che, ricoprendola naturalmente, ne costituirà un elemento imprescindibile. Tale quinta verde ha il secondo obiettivo di contribuire alla “mitigazione” dell’impatto complessivo del fabbricato verso sud ed ovest.
Immagini prima dell’intervento:
Immagini dopo l’intervento:








